Căn hộ áp mái với tông hồng chủ đạo

01/11/2025 00:00

Căn hộ được sửa lại theo phong cách nữ tính, đồng bộ sắc hồng và tận dụng ánh sáng tự nhiên.

Tổng thể căn hộ được thiết kế theo hướng tận dụng mọi góc chết, đồng thời giữ tính nhất quán trong tông màu, vật liệu và công năng sử dụng.

Căn hộ tọa lạc tại tầng áp mái khu vực Square Trousseau, nằm trong khu chợ thực phẩm lâu đời của Paris, Pháp.

Trước khi cải tạo, mặt bằng căn hộ phân mảnh với phòng tắm nhỏ không có cửa sổ, toilet đặt ngay lối vào và gác lửng chiếm chỗ cồng kềnh trong phòng khách. Bên cạnh đó, khu nấu nướng nhỏ, tối và tách biệt với phòng khách.

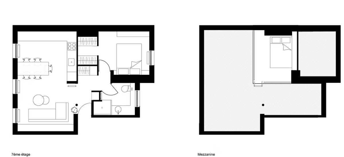
Sơ đồ mặt bằng của căn hộ sau khi cải tạo.

Nhóm KTS đã cải tổ toàn bộ cấu trúc không gian. Bếp mới được đưa vào khu sinh hoạt chung, tạo mặt bằng mở. Toilet và phòng tắm được dời sang vị trí có ánh sáng tự nhiên, gác lửng chuyển lên phía trên bếp.

Toàn bộ sàn nhà được thay bằng gỗ sơn trắng. Khu bếp chữ L với hệ tủ ngăn kéo âm tường, tích hợp thiết bị như máy rửa bát, lò nướng, tủ lạnh âm. Mặt bếp bằng đá thạch anh, cửa tủ bếp trên sử dụng kính phản chiếu, tạo hiệu ứng mở rộng cho không gian.

Thang leo kim loại sơn hồng kiểu hồ bơi dẫn lên gác lửng, vừa là điểm nhấn thị giác, vừa tiết kiệm diện tích so với cầu thang truyền thống.

Tầng gác bố trí giường đôi lớn cho khách ở lại.

Giường đặt dưới mái chéo, tận dụng khoảng trần thấp kết hợp ô cửa trời lấy sáng trực tiếp, giúp khu vực gác lửng luôn thông thoáng và có ánh sáng tự nhiên.

Phòng ngủ phủ toàn bộ tường bằng sơn hồng pastel theo yêu cầu gia chủ, kết hợp hệ tủ và tranh treo.

Những món đồ trang trí cũng có tông hồng, tạo cảm giác liền mạch trong không gian nghỉ ngơi.

Tủ sách lớn chiếm trọn mảng tường phòng khách, đi kèm sofa nhung tông hồng đất. Trần nhà giữ lại hệ dầm gỗ, sơn trắng toàn bộ, giữ nguyên độ cao trần.

Khu vệ sinh dùng tông hồng đất nhẹ, kết hợp mặt bàn lavabo bằng sứ, tủ gỗ laminate và mảng tường lát gạch marble trắng. Sự kết hợp này giúp làm nổi bật tông màu chủ đạo trong khi vẫn giữ cảm giác ấm và sạch.

Bích Phương (theo Homeadore)

Theo vnexpress.net
https://vnexpress.net/can-ho-ap-mai-voi-tong-hong-chu-dao-4958315.html
Copy Link
https://vnexpress.net/can-ho-ap-mai-voi-tong-hong-chu-dao-4958315.html
    Nổi bật
        Mới nhất
        Căn hộ áp mái với tông hồng chủ đạo
        • Mặc định

        POWERED BY ONECMS - A PRODUCT OF NEKO